包装复合罐生产方案


复合罐是近几年来发展较快的一种新型包装制品。普遍以牛皮纸-铝箔-涂塑纸复合材料按一定方式绕制成筒,然后封合上金属或塑料盖,制成阻隔性好,耐水耐油的复合罐,广泛用于食品、油脂及其膏状、液状物料包装,替代金属、玻璃罐使用,利于废弃物处理,同时降低包装成本。



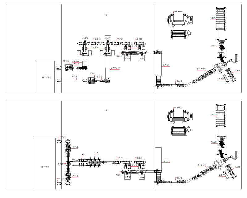
生产流程工艺图:


生产配套设备:

JS-SR1600分切机   PTE2-120M多刀纸管机    全自动贴标机    全自动封盖机   多工位外翻机

其他辅助设备:

流水线烘道;定制输送带;杀菌清洁部位;卧立转换部位 ;定制自动装箱部位 (选配)